Văn bản khi được ban hành sẽ có tên cơ quan ban hành được thể hiện trên văn bản. Vậy, phải ghi tên cơ quan, tổ chức ban hành văn bản sao cho đúng. Bài viết dưới đây sẽ là hướng dẫn chi tiết về cách ghi tên cơ quan ban hành văn bản.

Cơ quan ban hành văn bản là gì?
Nghị định 30/2020/NĐ-CP về công tác văn thư quy định về văn bản như sau:
“Văn bản là thông tin thành văn được truyền đạt bằng ngôn ngữ hoặc ký hiệu, hình thành trong hoạt động của các cơ quan, tổ chức và được trình bày đúng thể thức, kỹ thuật theo quy định.”
Như vậy, văn bản được hiểu là giấy tờ được sử dụng như một phương tiện để ghi nhận, lưu trữ và trao đổi thông tin bằng chữ viết. Hiện nay có nhiều loại văn bản khác nhau, mỗi loại văn bản sẽ có những chức năng khác nhau. Chẳng hạn: văn bản quy phạm pháp luật, văn bản hành chính, hợp đồng, hóa đơn, chứng từ, văn bằng, chứng chỉ...
Đối với mỗi loại văn bản khác nhau sẽ có đơn vị ban hành văn bản khác nhau. Tùy vào tính chất của văn bản, đơn vị ban hành văn có thể là cơ quan, tổ chức hoặc cá nhân. Cơ quan ban hành văn bản là đơn vị có thẩm quyền ban hành văn bản theo quy định pháp luật.
Mỗi loại văn bản khác nhau sẽ có đơn vị ban hành khác nhau.
Cách ghi tên cơ quan ban hành văn bản
Trong công tác soạn thảo văn bản, việc ghi tên cơ quan, tổ chức không thể thực hiện một các tùy tiện mà phải tuân theo đúng thể thức, kỹ thuật theo quy định.

Cách ghi tên cơ quan tổ chức ban hành văn bản
Cụ thể:
Thể thức
Tên cơ quan, tổ chức ban hành văn bản là tên chính thức và đầy đủ của cơ quan, tổ chức ban hành văn bản hoặc chức danh nhà nước của cá nhân có thẩm quyền ban hành văn bản đó.
Tên cơ quan, tổ chức ban hành văn bản có 02 thành phần:
Tên cơ quan, tổ chức ban hành văn bản;
Tên cơ quan, tổ chức chủ quản trực tiếp (nếu có).
Đối với tên cơ quan, tổ chức chủ quản ở địa phương thì có thêm tên tỉnh, thành hoặc quận, huyện, thị xã, thành phố ban hành văn bản đóng trụ sở.
Tên cơ quan, tổ chức chủ quản trực tiếp được viết tắt bằng những cụm từ thông dụng. Chẳng hạn Ủy ban nhân dân viết tắt là UBND, Hội đồng nhân dân viết tắt là HĐND,...
Cách trình bày
Đối với văn bản hành chính
Phụ lục I ban hành kèm Nghị định 30/2020/NĐ-CP quy định về cách viết tên cơ quan, tổ chức ban hành văn bản hành chính như sau:
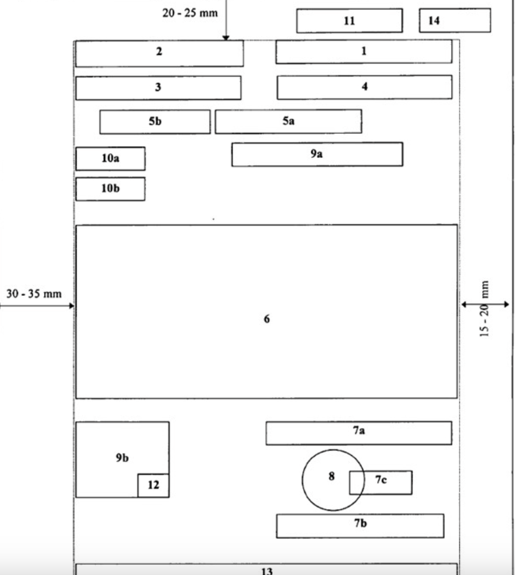
Tên cơ quan, tổ chức ban hành văn bản hành chính được viết bằng chữ in hoa, cỡ chữ từ 12 - 13, kiểu chữ đứng, đậm, đặt canh giữa dưới dòng chữ ghi tên cơ quan, tổ chức chủ quản trực tiếp. Phía dưới tên cơ quan, tổ chức ban hành có đường kẻ ngang, nét liền, có độ dài bằng từ 1/3 đến 1/2 độ dài của dòng chữ và đặt cân đối so với dòng chữ ghi tên cơ quan ban hành.
Tên cơ quan, tổ chức chủ quản trực tiếp được viết bằng chữ in hoa, cỡ chữ từ 12 - 13, kiểu chữ đứng.
Tên cơ quan, tổ chức ban hành văn bản và tên cơ quan, tổ chức chủ quản trực tiếp được viết cách nhau dòng đơn. Nếu tên cơ quan, tổ chức ban hành văn bản, tên cơ quan, tổ chức chủ quản trực tiếp dài có thể viết thành nhiều dòng.
Tên cơ quan, tổ chức ban hành văn bản được trình bày tại ô số 2 theo sơ đồ bên dưới:

Đối với văn bản quy phạm pháp luật
Nghị quyết 351/2017/UBTVQH14 quy định về cách viết tên cơ quan ban hành văn bản quy phạm pháp luật như sau:
Tên cơ quan ban hành văn bản quy phạm pháp luật được viết bằng chữ in hoa, cỡ chữ 12, kiểu chữ đứng, đậm, đặt cân đối ở phía trên cùng bên trái của trang đầu tiên của văn bản. Phía dưới tên cơ quan ban hành có đường kẻ ngang, nét liền, có độ dài từ 1/3 đến 1/2 độ dài tên cơ quan ban hành văn bản và đặt ở giữa, cân đối so với dòng tên cơ quan.
Phải trình bày hình Quốc huy phía trên tên cơ quan ban hành văn bản đối với lệnh, quyết định của Chủ tịch nước.
Đối với nghị quyết của Quốc hội, nghị quyết của Ủy ban Thường vụ Quốc hội, tên cơ quan ban hành văn bản được viết trên một dòng bằng chữ in hoa, cỡ chữ 14, kiểu chữ đứng, in đậm, đặt ở giữa theo chiều ngang văn bản.
Đối với lệnh, quyết định của Chủ tịch nước, tên cơ quan ban hành văn bản bao gồm Quốc hiệu, được trình bày trên hai dòng, bằng chữ in hoa, cỡ chữ 14, kiểu chữ đứng, đậm, đặt ở giữa theo chiều ngang của văn bản.
Văn bản nào cần ghi tên cơ quan, tổ chức ban hành?
Theo quy định tại Nghị định 30/2020/NĐ-CP và Nghị quyết 351/2017/UBTVQH14, tên cơ quan, tổ chức ban hành là một những thành phần chính của thể thức văn bản áp dụng đối với văn bản hành chính và văn bản quy phạm pháp luật.

Văn bản quy phạm pháp luật cần ghi tên cơ quan tổ chức ban hành
Như vậy, văn bản hành chính và văn bản quy phạm pháp luật cần ghi tên cơ quan, tổ chức ban hành.
Trên đây là nội dung hướng dẫn cách ghi tên cơ quan ban hành văn bản. Nếu bạn có bất kỳ thắc mắc nào liên quan đến cách ghi tên cơ quan, tổ chức ban hành văn bản vui lòng liên hệ đến tổng đài: 1900.6199 để được tư vấn.
